千葉県成田市多良貝
倉庫 |坪数:784.23坪
賃料/月:2,400,000円
エリアから物件を探す
賃料(税込) 1,200,000円

お電話でのお問合せ
受付時間 平日8:30〜18:30
0120-100-755
物件コードをお伝え下さい
s1343
WEBからのお問合せ
24時間受付中
賃料(税込)
1,200,000円
坪単価
3,435円
敷金(保証金)
4ヶ月
礼金
1ヶ月
使用開始日
相談
物件所在地
千葉県千葉市美浜区新港
建物床面積
349.38坪(1,154.98m2)
敷地面積
-
建物面積内訳
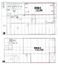
倉庫: 1階106.9坪、2階243.25坪
建物構造
鉄骨造
軒高
-
用途地域
準工業地域
前面道路幅員
-
建物階数
2階建
備考
男女別トイレ 大型車進入可
お電話でのお問合せ
受付時間 平日8:30〜18:30
0120-100-755
物件コードをお伝え下さい
c256
WEBからのお問合せ
24時間受付中
物件コードc256をお伝え下さい。
0120-100-755
【受付時間】8:30〜18:30(土日祝日を除く)
お電話でのお問合せ
受付時間 平日8:30〜18:30
0120-100-755
物件コードをお伝え下さい
c256
WEBからのお問合せ
24時間受付中
千葉県成田市多良貝
倉庫 |坪数:784.23坪
賃料/月:2,400,000円
千葉県茂原市早野
倉庫 |坪数:192.65坪
賃料/月:577,963円
千葉県市川市本行徳
倉庫 |坪数:129.99坪
賃料/月:780,000円
千葉県八街市山田台
倉庫 |坪数:1705.52坪
賃料/月:4,263,819円
千葉県習志野市芝園2丁目
倉庫 |坪数:1180.69坪
賃料/月:5,800,000円
千葉県市原市白塚
倉庫 |坪数:242.47坪
賃料/月:450,000円
千葉県柏市大青田
倉庫 |坪数:450.00坪
賃料/月:1,620,000円
千葉県市川市塩浜2丁目
倉庫 |坪数:212.67坪
賃料/月:1,400,000円